Cardlytics @ Ponce City Market

Location: Atlanta, GA

Project Type: Office and Interiors

The total Cardlytics office occupies an entire floor of Ponce City Market and spans more than the length of 1 1/2 football fields.

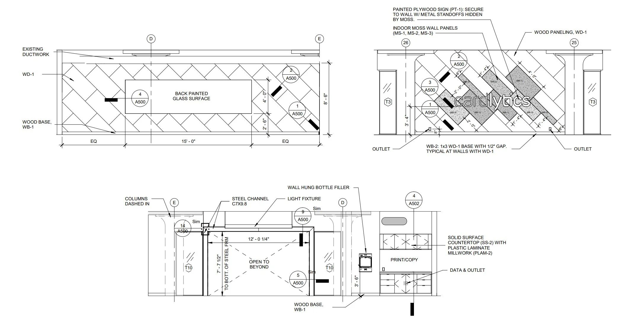
In keeping with the vibrant workplace desired by the client, this phase builds on the initial design language without replicating it, using the same material palette in a fresh way. Steel channels playfully frame the program and diagonal wall panels from Phase I were brought into Phase II to frame the inset moss wall. A lively palette of variously-colored moss was used to frame the office signage.

This bright and daylit workplace for software developers, their real-world interface and corporate operations is highly collaborative and flexible while retaining professional clarity. Cardlytics has thrived in its new offices, and is attracting world-level professionals from several disciplines.

The project completed in 2018.

Completed while employed at Smith Dalia Architects

Previous
Previous

Skyland Trail Adolescent Campus

Next
Next

Residential work under Robert M. Cain, FAIA